A24 Reconstruction

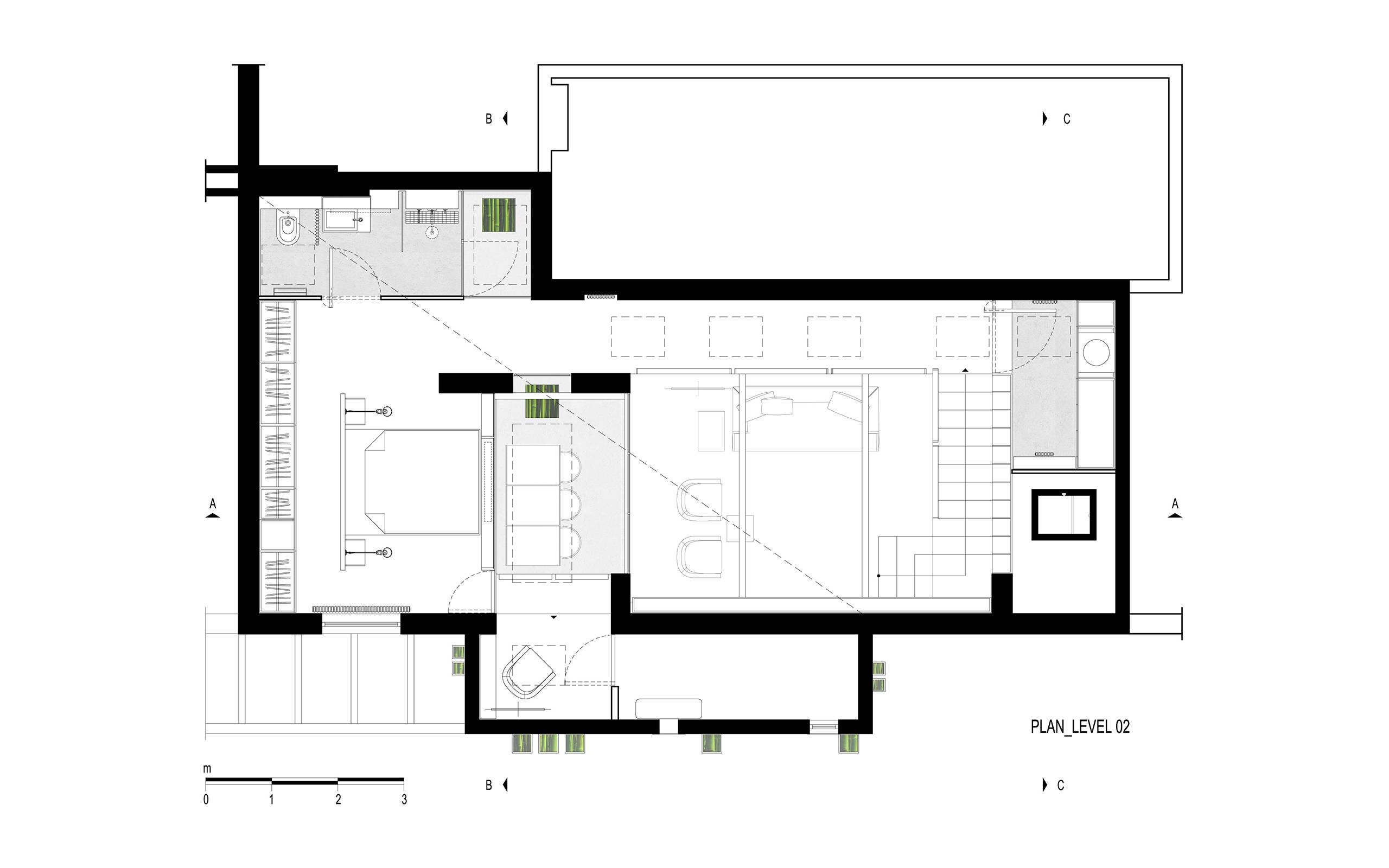
In the central Belgrade ‘70s dwelling, a challenging reconstruction of the A 24 introduced a new metal construction, thus enabling additional 13m2 of habitable space. Eleven light wells were created to allow natural light and ventilation for the entire place, along with establishing two transitional points- interior gardens.

The 110m2 space is conceived like a bespoke wooden box, while the ‘70s nostalgia was evoked through the materiality: walnut veneer, birch plywood and handmade terrazzo.

This project focused on architectural qualities in parallel with the social ones. Namely, it was coordinated in three languages and supported by dedicated professionals who made the realization joyful and possible.

  • Location

    Belgrade/Serbia
  • Year

    2018
  • Architectural and Interior design

    Ivana Lukovic, Architect_ Athens/Greece
  • Collaborators

    Alexandra Arampatzi, Architect_ Athens/Greece Stanford Rabbit (Kostas Geranios and Orestis Mpormpantonakis, Architects), Renderings_ Athens/Greece
  • Construction

    Miroslav Silaski, Civil Engineer_ Belgrade/Serbia
  • Contractor

    Urban Construction (Uros Pejovic and Nemanja Bajovic, Civil Engineers) _ Belgrade/Serbia
  • Joinery

    Dionysios Lourmpas with collaborators Antonios Lourmpas and Mohamed Elsayed_ Athens/Greece
  • Lighting

    Light Plus_ Athens/Greece
  • Photo credits

    Dusan Djordjevic, Photographer_ Belgrade/Serbia
  • Video credits

    Aleksandar Jovanovic, Director of Photography_ New York/USA and Belgrade/Serbia Milorad Glusica, Cinematographer_ Belgrade/Serbia